HomeBedrijfBranchesPomptypesMerkenServiceContact

Reynaert Pompen
Reynaert Pompen
Reynaert Pompen
Reynaert Pompen te Izegem
Reynaert Pompen in Vlaanderen
Reynaert pompen BVBA  --  Prins Albertlaan 111  --  8870 Izegem  --  Belgie  --  T +32 (0) 473/766.407  --  F +32 (0) 51/31.50.82  --  E  info@pompenreynaert.com
Wilo pompen
Reynaert Waterpompen


Wilo pomp logo
Verwarming, klimatisatie, koeling 
Wilo circulatiepompen
Al vele jaren verdeelt Reynaert Pompen het Gamma van Wilo pumpe, gevestigd in Duitsland
Wilo produceert een breed pakket van RVS pompen van een zeer hoogwaardige kwaliteit. 
Pompen zijn geschikt voor de industriële, bouw, landbouw en huishoudelijke markt.


Klik op onderstaande afbeelding of tekst voor documentatie van de meestgebruikte Wilo pompen. Indien u een type niet vind, vraag dan vrijblijvend info en wij sturen u Documentatie, prijs en levertermijn van de Wilo pompen terug.
Watervoorziening Wilo en regenwaterhergebruik
Vuil- en afvalwater Wilo
Wilo Dompelpompen 
Industriële processen Wilo
Wilo Zelfaanzuigende hydrofoor pomp Multicargo
Wilo Rainsystem AF 150
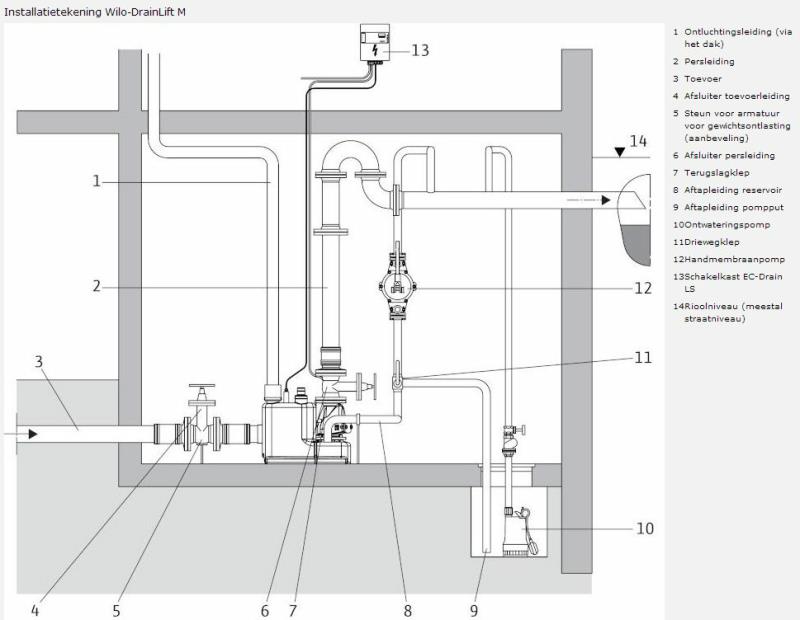
Wilo huishoudelijke afvalwater pompen
Wilo centrifugaalpompen
Wilo Stratos circulatie pomp
Wilo circulatiepomp veroline
Contact formulier
OFFERTE aanvraag
OFFERTE aanvraag